怡丁苑棚户区改造项目经过去年的统筹安排、严格组织,主体结构大部分均已施工至九层,地下车库也已基本完成。根据工程施工进度安排,计划于今年4月底完成1#~9#楼的主体结构封顶,并着手准备二次结构的砌筑。与此同时,太阳能、窗户、防盗门和电梯等产品的采购工作也需提前进行考察、调研和招标。
为了确保各产品性价比最优化,以及全体住户的知情权、参与权和监督权。4月2日上午10时,基本建设处和后勤管理处组织全体住户代表召开关于太阳能、窗户、防盗门和电梯等产品招标采购的征求意见会,薛智副校长出席会议。首先,基本建设处处长夏瑞丽和副处长赵家乐介绍了工程进度、招标流程、产品种类、参数和招标时间节点。
会上,经住户代表们推选,确定了李儒、冯再新为产品招标的评标代表,李宝泉、宋河金为备选代表,负责产品采购的意见汇总、考察调研和招标评标。同时,住户代表们还就第二批房款的交付手续、原有房子的腾出时间、地下室的分配以及窗户材料等提出了疑问。
经讨论,初步议定二次交款时间、搬家时间、地下室分配及公积金贷款等问题由后勤管理处与财务处协商后出台具体办法。窗户采用塑钢还是断桥铝型材需要征求全体住户意见,由各单元住户代表汇总后于4月15日再次召开住户代表会最终确定(附各户型窗户面积以供参考)。
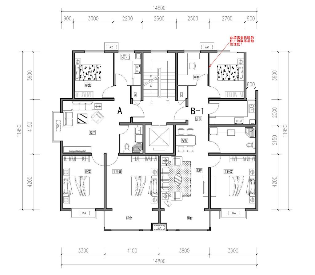
此外,鉴于部分住户提出可否去掉B-1户型(6#、7#、8#楼中间小户型)内书房与次卧间隔墙的问题,会议确定住户可将意见于4月20日前提交至后勤管理处进行汇总,由基本建设处统一安排予以实施。
最后,薛智副校长提出希望各住户代表将会议内容向全体住户传达好、解释好,产品的选用要广泛征求大家的意见,充分调研,大家的事情大家办。同时表示,项目一定是在保证质量的前提下,争取提前交付使用。

附:
A户型窗户总面积:24.03平方米
B-1、B-2户型窗户总面积:18.45平方米
C户型窗户总面积:40.05平方米
D户型窗户总面积:33.57平方米
E户型窗户总面积:31.86平方米
